Arquitecto Santiago Sposaro Logotipo

Arquitectura Contemporánea – Arquitectura Unifamiliar y Multifamiliar – Arquitectura Comercial

Guiri Coffee & Burgers

Ubicación: Av. Córdoba y Jean Joures. CABA, Argentina
Labor: Proyecto y Construcción.

Local a nuevo 100% ubicado en excelente zona de Avenida Córdoba.

JBJ Edificio de Viviendas (7500M2)

Ubicación: Calle Juan B Justo. Ciudad Autónoma de Buenos Aires, Argentina.
Labor: Proyecto de Licitación y Proyecto Ejecutivo. (11-2022/11-2023)
Estudio: CC Arquitectos.

Local a nuevo 100% ubicado en excelente zona de Avenida Córdoba.

Falcon Edificio de Viviendas. (2500M2)

Ubicación: Calle Falcón. Ciudad Autónoma de Buenos Aires, Argentina.
Labor: Proyecto de Licitación y Proyecto Ejecutivo (07-2022/10-2022)
Estudio: CC Arquitectos.

Modernos departamentos de 3 dormitorios. -Se desarrolla con 1 departamento por nivel. -El edificio tiene una PB con acceso y estacionamiento y 4 niveles de viviendas.

Remodelación completa de Vivienda

Ubicación: La Horqueta. San Isidro. Buenos Aires.
Labor: Construcción. (Sposaro-Obrar). 2022

Se trata de una remodelación completa al 100% de la parte existente de la casa, modernizando la casa con los conceptos de la arquitectura contemporánea.
La ampliación tiene estilo americano con el uso de perfiles metálicos. Se logró una casa moderna con los standars de la época.
_Carpinterías DVH
_Calefacción por radiadores
_Aire acondicionado
_Sanitarios Roca
_Griferias FV
_Pisos de madera
_Neolith en el baño principal
_Travertino en los pisos exteriores.

Veterinaria Boutique

Ubicación: Jorge Luis Borges 2324. Palermo. CABA.
Labor: Proyecto y Construcción. (02-2022/03-2022)

Local a nuevo 100%.
_Pisos de Porcellanato,
_Carpintería,
_Vidriera en vidrio laminado,
_iluminación diseñada,
_Cartelería.

Ampliación de Oficinas (200m2). Steel Frame

Ubicación: Ruta 25 Pilar. Fabrica R.I.S
Labor: Construcción. (Sposaro-Verdondoni)

Se trata de una ampliación de 200m2 de Oficinas para la Industria R.I.S. , una fábrica de materias primas para la industria de la alimentación.
Calidades:
_ Construcción Steel Frame.
_Terminación exterior Pintura
_Pisos Porcellanato
_Ventanas DVH

Ampliación de Vivienda. 60m2.

Ubicación: Barrio Santa Catalina, Dique Luján. Partido de Tigre. Buenos Aires.
Labor: Proyecto y Construcción. 2021

La obra consiste en 60m2 nuevos construidos sobre PB existente
Función: 2 Dormitorios + Vestidor+ Baño + Escalera+Terrazas.
Sistema Constructivo:
_Steel Frame
Terminaciones:
_Piso de porcellanto ILVA
_Sanitarios Ferrum
_Griferias FV
_Carpinterias DVH . Corredizas y Oscilobatiente.
_Revoque exterior color.
_Sistema de Calefacción por Radiadores y
_ Refrigeración por Aire Acondicionado.

Refacción completa de vivienda. 60m2.

Ubicación: Calle Vidt. Barrio Norte. CABA. Buenos Aires.
Labor: Proyecto y Construcción.2021

Se hizo una refacción completa nueva en la vivienda cambiando instalaciones, pisos, revestimientos, baño, cocina, estar y patio.
Instalación Sanitaria: Se cambiaron todas las tuberías de instalación sanitaria, agua fría, agua caliente y desagues en baño y cocina.
Instalación Eléctrica: Se recableo toda la instalación eléctrica y se agregaron bocas nuevas. Se hizo tablero nuevo.
Pisos: Pulido y plastificado en piso parquet existente. Se hizo el piso nuevo en la cocina, el baño y patio.
Revestimientos: Revestimientos nuevos en baño
Carpinterias nuevas: Aluar Modena DVH
Mueble de cocina: melamina con cierres suaves.
Pintura: Satinado Blanco
Aire Acondicionado: Frío Calor. Instalación nueva.

Ampliación de vivienda. 50m2

Ubicación: Benavidez. Partido de Tigre. Buenos Aires.
Labor: Proyecto y Construcción. (10-2020/01-2021)

OBRA NUEVA – AMPLIACIÓN VIVIENDA.
50m2 nuevos construidos sobre PB existente
Función: Dormitorio + Estar Play + Baño.
Sistema Constructivo:
_Techo de estructura metálica + lana de vidrio + chapa
_Paredes exteriores de mampostería de ladrilo.
_Paredes interiores de durlock.
_Cielorraso suspendido de durlock.
Terminaciones:
_Piso de porcellanto ILVA Legni Olden
_Sanitarios Roca
_Griferias FV
_Carpinterias DVH . Corredizas y Oscilobatiente.
_Revoque exterior tipo Tarquini color.
Sistema de Calefacción y Refrigeración:
_Se agregó piso radiante a toda la ampliación ( Dorm-Estar-Baño) + toallero en baño.
_ 2 Unidades de Aire Acondicionado.
Otras intervenciones:
_Reformulación de espacio entrada principal de la casa.

Refacción completa de Vivienda

Ubicación: Barrio Norte. CABA. Buenos Aires.
Labor: Proyecto y Construcción. (03-2020/08-2020)

Se hizo una refacción completa nueva en la vivienda cambiando instalaciones, pisos, revestimientos, baño, cocina, estar y patio.
Instalación Sanitaria: Se cambiaron todas las tuberías de instalación sanitaria, agua fría, agua caliente y desagues en baño y cocina.
Instalación Eléctrica: Se hizo toda la instalación eléctrica nueva y se agregaron bocas nuevas. Se hizo tablero nuevo.
Pisos: Pulido y plastificado en piso parquet existente. Se hizo el piso nuevo en la cocina, el baño y patio.
_Revestimientos: Revestimientos nuevos en baño
_Carpinterias nuevas: Aluar Modena DVH
_Mueble de cocina: melamina con cierres suaves.
_Pintura: Satinado Blanco

Ampliación 90m2. STEEL FRAME

Ubicación: Barrio San Rafel – Villanueva. Zona Norte Pcia. Buenos Aires.

Labor: Proyecto – Dirección de Obra – Construcción. 08-2018 _01-2019. (Sposaro-Peña)

Se trata de una ampliación en el Barrio San Rafael en Villanueva. La ampliación es sobre una terraza existente preparada para recibir carga. Se Utiliza sistema Steel Frame por su rapidez de ejecución y por sus buenas prestaciones como aislamiento térmico y acústico.
La ampliación consta de 2 dormitorios, 1 baño, 1 Playroom y 1 terraza. Sumando 90m2 a la casa exitente que ya tiene 200m2 siendo un total de 290m2.
Materiales de 1era calidad, carpinterías DVH, aire frío calor split y calefacción por piso radiante.

Volkswagen Ampliación 18.000m2

Ubicación: Pacheco. Prov. Buenos Aires.
Labor: Coordinador de Proyecto Ejecutivo – Arquitectura – Instalaciones – Estructura. 2018-2019
Gerenciadora: LINZ.

La Fábrica Volkswagen se amplía para poder fabricar el modelo TAREK.

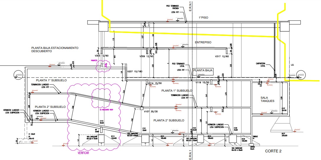
Trump Tower Edificio de 160 Viviendas +Amenities

Ubicación: Punta del Este. La Brava. Frente al Mar. Uruguay.
Labor: Jefe de Proyecto – Project Manager. 12-2014 _03-2018.
Desarrolladora: YY_Dgroup.

El Edificio se desarrolla en Sector Torre de 3 subsuelos en patio ingles con Amenities + 24 pisos de viviendas + Helipuerto en piso 27…y el Sector Basamento en la parte posterior de la Torre dónde están los estacionamientos, salas de máquinas y muchos amenities (Cancha de Tenis con medidas ATP y Cubierta con Gradas, Spa, 2 Piletas cubiertas, Vestuarios, Baños, S.U.M., Jaula de Golf, 2 Piletas descubiertas con Solarium verde + Bar y Quinchos con parrilla)

Fitz Roy Edificio de Viviendas

Ubicación: Calle Fitz Roy 2323, Palermo, Ciudad Autónoma de Buenos Aires, Argentina.
Labor: Proyecto de Licitación y Proyecto Ejecutivo. 07-2012 -2013.

Estudio: MRA+A. Mario Roberto Alvarez + Asociados. edificio

Modernos departamentos de 1, 2 y 3 ambientes aptos para profesionales, en Palermo Hollywood. Unidades prácticas, de gran diseño y óptima calidad constructiva que privilegian al máximo la funcionalidad y el aprovechamiento de la luz solar. Cocinas americanas, agua caliente central, pisos interiores en porcellanato, instalación preparada para recibir aire acondicionado tipo split, amplias ventanas de aluminio tipo modena.

Además, el edificio tiene: Hall de acceso de doble altura, Solárium, Pileta de 20 mts. de largo, Sector equipado con Parrillas, Gimnasio con vestuarios, Internet wi-fi en áreas comunes, control de acceso con portero visor, amplias Cocheras, Bauleras opcionales, Laundry.

Edificio de Oficinas - LEED

Ubicación: Calle Laprida, Ptdo. de Vte. López,  Buenos Aires,  Argentina.
Labor: Proyecto de Licitación y Proyecto Ejecutivo. 06-2011 – 2013 | Estudio: MRA+A. Mario Roberto Alvarez + Asociados.

Green Building: El edificio está proyectado según criterios LEED.
LEED (LEADERSHIP in ENERGY in ENVIRONMENTAL DESIGN) es el estándar en construcción sostenible con mayor prestigio en todo el mundo. Se basa en un sistema de puntuación que mide el nivel de respeto medioambiental y de salud de los edificios y que ha sido desarrollado por el US Green Building Council (USGBC). El certificado LEED se estructura en 5 categorías principales:
1. EMPLAZAMIENTO, que mide el impacto que tiene la selección de un emplazamiento concreto sobre el medio ambiente local.
2. GESTIÓN DE AGUA, que incluye la integración de tecnologías y estrategias para reducir la cantidad de agua potable consumida en el edifico.
3. CALIDAD AMBIENTAL INTERIOR, que tiene en cuenta el uso de luz natural, criterios de confort térmico, acústico, ventilación y otros aspectos que inciden sobre la salud ambiental de un espacio.
4. MATERIALES, que promueve las prácticas de reducción de deshecho de la construcción, de reciclado doméstico, así como el uso de materiales reciclados o rápidamente renovables para la construcción.
5. ENERGÍA Y ATMÓSFERA, que mide la eficiencia y comportamiento energético del edifico y que promueve la integración de energías renovables.
Dentro de cada una de estas 5 categorías hay créditos o puntos para el cumplimiento de objetivos específicos. LEED v3.0, la última actualización, incluye un máximo de 100 puntos y, en función de los puntos conseguidos, permite alcanzar 4 niveles de certificación: certificado (LEED Certificate), plata (LEED Silver), oro (LEED Gold) y platino (LEED Platinum).
Si bien LEED fue inicialmente concebido en Estados Unidos, LEED se ha venido utilizando en otras partes del mundo, existiendo en la actualidad edificios certificados en más de 30 países.

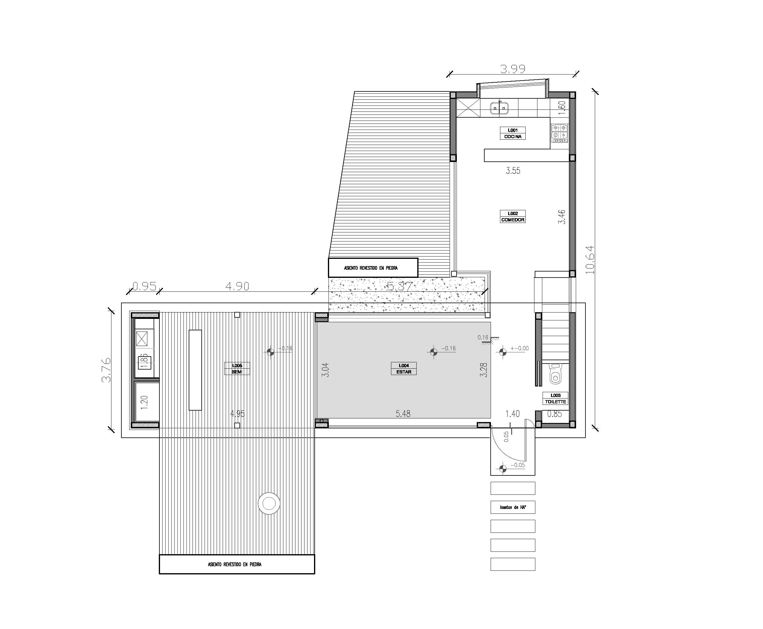
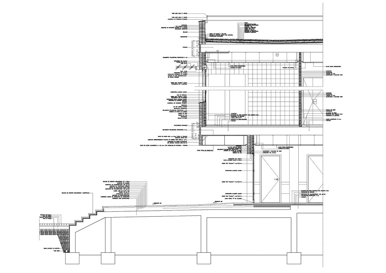
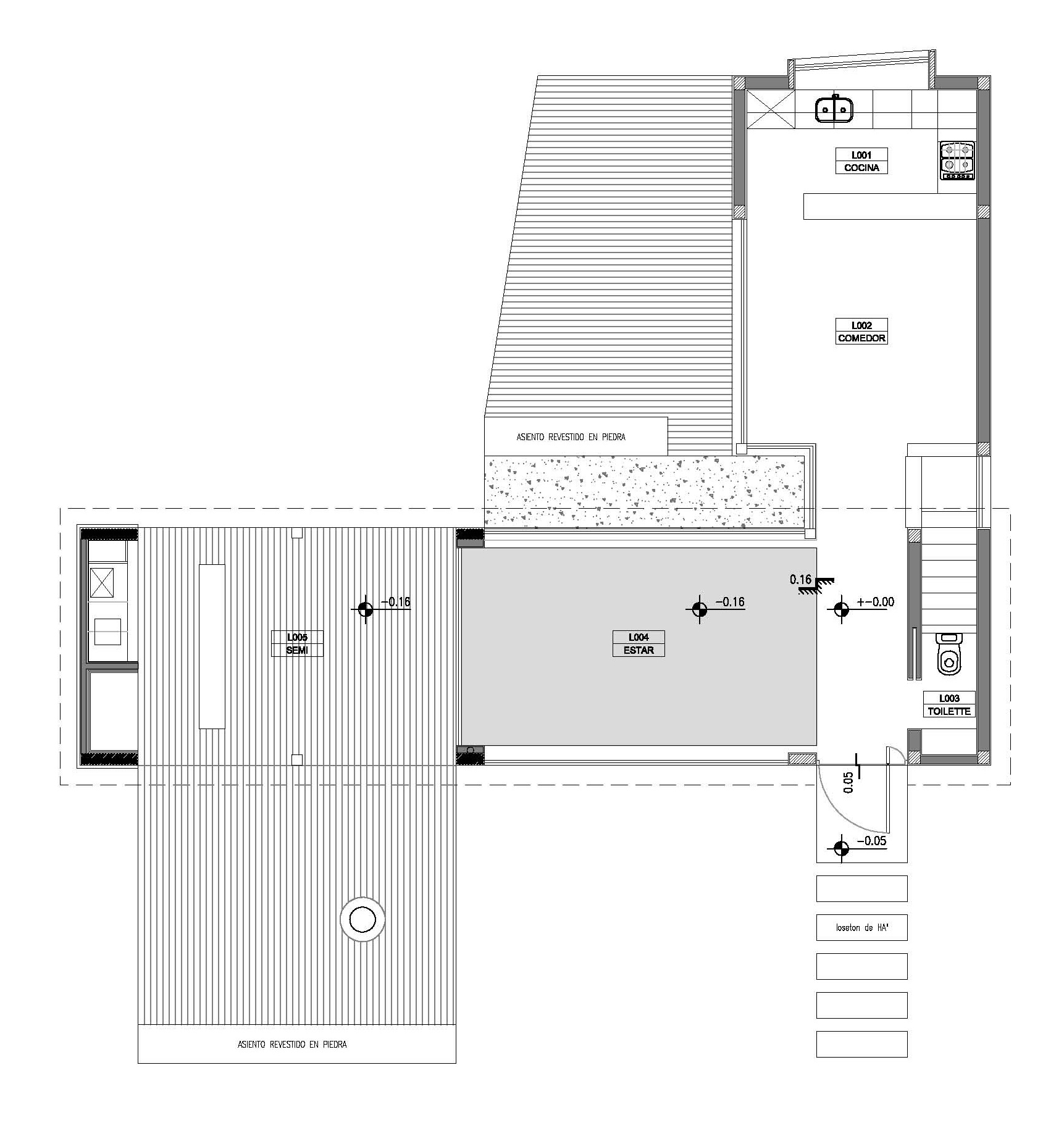
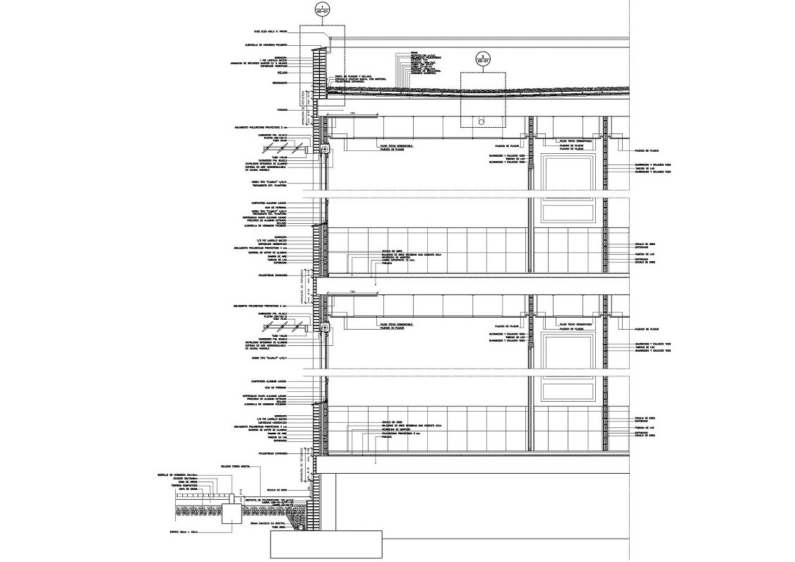
Casa LELOIR 130m2

Ubicación: Calle Frers y Baqueanos_Parque Leloir_Ptdo. de Ituzaingo_ Buenos Aires_ Argentina.
Labor: Anteproyecto, Proyecto Ejecutivo y Dirección de Obra. (Sposaro-Ferraro).2013

La idea es tener una relación amigable con el entorno, integrar la naturaleza del terreno, el parque y la arbolada con la vida cotidiana en el uso de la vivienda.
Resultó ser una vivienda de 122m2 cubiertos y 18m2 semicubiertos, para la cual se proponen 2 volúmenes cruzados que forman una «L» y que generan una PB de uso social, cubierta, vidriada, transparente con un sector semicubierto. En el Frente, el espacio de 5m entre los árboles y la línea municipal dan lugar para que se use como aparcamiento y acceso a la vivienda. A la vivienda se ingresa por un lateral el cual tiene un acceso rampante hasta llegar a la vivienda en un nivel +0.40 con respecto al terreno dónde se encuentra la entrada a la vivienda, el toilette, comedor con cocina abierta y una expansión al aire libre para vivir el jardín, el cielo y la naturaleza circundante. A nivel +/-0.00 igual que el terreno se encuentra el Estar y el semicubierto con parilla y su expansión de deck de madera. El semicubierto está pensado como un espacio para usar como parrilla-quincho-lavadero y su expansión sobre el frente del terreno en deck de madera, que sirve para estar más en conexión con la naturaleza, comer al aire libra bajo los árboles, tomar unos mates… etc.

Una escalera de 1 tramo ubicada entre el comedor y el salón comunica Planta Baja con Planta Alta. La Planta Alta es de uso privado mas intimo, en un volumen más cerrado pero con ventanas al frente y contrafrente y con una salida a la Terraza sobre el volumen de PB que ocupan el salón y la cocina. Ni bien se sube la escalera se llega a un espacio que se usará como Playroom-Estar intimo, un espacio de usos varios, con una salida a la Terraza y un pasillo que comunica a los 2 Dormitorios y al Baño. Una larga caja vidriada a la lo largo del pasillo permite estar en conexión con el exterior, los arboles del frente, la iluminación y ventilación. El Dormitorio anexado al Salón es para el más pequeño de la familia, quedando el otro Dormitorio con vestidor para la pareja. El baño tiene doble acceso para poder usarse desde el pasillo o cerrando esa puerta, usarse desde el vestidor como baño en suite. La Terraza vive todo el espacio del parque a cielo abierto y está equipada para poder ubicar un jacuzzi con deck el día de mañana.

A futuro puede obtenerse ampliaciones de la vivienda en Semicubierto de Planta Baja que puede cerrarse para ampliar el salón o generar otro espacio. En Planta Alta se puede cerrar el Salón y convertirse en Dormitorio y lo mismo con la Terraza que puede cerrarse y generar hasta 2 ambientes más.

FREIRE - Edificio 6 Viviendas Unifamiliares

Ubicación: Calle Freire_ (esquina con Av. de los Incas) Belgrano, Buenos Aires, Argentina.

Labor: Proyecto de Licitación y Proyecto Ejecutivo. 062011 – 2012.

Estudio: MRA+A.  Mario Roberto Alvarez + Asociados.

Con una altura de 14.00 mts. y un total de 2.470 m2, la obra ubica en su subsuelo, 15 cocheras, bauleras y sala de máquinas (incluida la de los ascensores hidráulicos).

Los retiros perimetrales conforman un área verde común del edificio en planta baja y encuadran una pileta y solárium en el subsuelo.
En la planta baja, y retirada 3 metros de la línea Municipal, una carpintería de acero inoxidable y vidrio da acceso al hall de ascensores del edificio, desde donde se accede a una vivienda ubicada al contrafrente.

En los Pisos 1º a 3° se proyectaron 2 departamentos por piso de 2 dormitorios y de 2 dormitorios con escritorio de con una superficie propia de 250 m2, aproximadamente, cada uno. Todos ellos poseen amplios balcones y terrazas con generosas vistas y sectores retirados para parrilla.

El núcleo vertical central es estructurador de la planta y esta conformado por una batería de 2 ascensores hidráulicos y una escalera presurizada contra incendios.

En su frente se combinarán, materiales nobles como el mármol Botticino y el granito negro sudafricano, junto con el revoque tipo “piedra París” pulido, el acero inoxidable y el vidrio lo que le conferirá un aire de clásico modernismo.

4 Edificios de Alojamiento para UME

 Ubicación: (2.010m2) en Torrejón, en Sevilla, en Zaragoza, y en León (2.560m2)

Labor: Proyecto Básico_ Proyecto Ejecutivo.  2007.

Estudio: G.O.P. oficina de proyectos

Son Alojamientos para las Unidades de Emergencia del Pais. Allí es dónde conviven en la semana mientras se entrenan. El edificio es en forma de Cruz de esta forma el edifico funciona mucho mejor energéticamente y funcionalmente. Cada ala de la estrella tiene habitaciones, cocina comedor y vestuarios.

Edificio 24 Viviendas en Bloque

Ubicación: Marchamalo, Guadalajara, España.

Labor: Proyecto Ejecutivo 2006_Dirección de Obra 2007/08.

Estudio: G.O.P. oficina de proyectos

Nos encontramos en Marchamalo un pueblo de Guadalajara (España) en el que se está construyendo mucha vivienda apostando que sirva de alojamiento para los que trabajan en Guadalajara, Alcalá de Henares y alrededores.

La forma del edificio es rectangular permitiendo las visuales de todos los pisos hacia el monte de enfrente y dejando la parte trasera para generar un espacio de uso común en planta baja. El edificio se divide en dos portales casi idénticos con un sótano que ocupa todo el terreno para garaje, planta baja de uso común y vivienda, planta primera y segunda solo vivienda y en ático con terrazas individuales.

Se ha establecido una fachada con ladrillo visto y monocapa blanco, y huecos con ventanas de vidrio doble y cámara de aire, los solados de dormitorios, salones y pasillos son de tarima de madera. Los portales de planta baja de mármol.

Edificio 13 Viviendas

Ubicación: Marchamalo,  Guadalajara, España.

Labor: Proyecto Ejecutivo 2006_ Dirección de Obra. 2007/08

Estudio: G.O.P. oficina de proyectos.
Nos encontramos en Marchamalo un pueblo de Guadalajara (España) en el que se está construyendo mucha vivienda apostando a que sirva de alojamiento para los que trabajan en Guadalajara, Alcalá de Henares y alrededores.
La forma del edificio es en “L” permitiendo las visuales de todos los pisos hacia el frente y dejando la parte trasera para generar un espacio de uso común en planta baja. El edificio tiene un sótano para garaje, planta baja de uso común, planta primera y segunda solo vivienda y en ático vivienda con terrazas individuales.

Se ha establecido una fachada con ladrillo visto y monocapa blanco, y huecos con ventanas de vidrio doble y cámara de aire, los solados de dormitorios, salones y pasillos son de tarima de madera. El portal de planta baja de mármol.

Edificio 84 Viviendas

Obra: Edificio 84 Viviendas. (PB y 9 niveles 6.946m2 + 3 sótanos 3.626m2).
Ubicación: Ensanche de Vallecas_ Madrid_ España.

Labor:
Proyecto Ejecutivo 2006_Dirección de Obra 2007/08.

Estudio: G.O.P. oficina de proyectos

Nos encontramos en el “Ensanche de Vallecas” en las afueras de Madrid (España) en el que se está construyendo mucha vivienda apostando a que sirva de alojamiento para los que trabajan en Madrid y alrededores. Se pensó muy bien en esta zona crear avenidas con espacios para locales comerciales en la planta baja de los edificios y arriba vivienda, para poder de esa forma recrear el clima de barrio de la ciudad. También hay supermercados y un centro comercial.

El edificio es en esquina en forma de L para poder de esta forma aprovechar el espacio interior del terreno y crear ahí el espacio de uso común, pileta y juegos para niños. Cuenta con departamentos de 1, 2 y 3 dormitorios y áticos con terraza. Se ha establecido una fachada con ladrillo visto y cámara de aire, huecos con ventanas de vidrio doble al igual que los miradores, los solados de dormitorios, salones y pasillos son de tarima de madera y los espacios de uso común como portales, escaleras y pasillos son de mármol. Tiene sistema de paneles solares para el calentamiento del agua caliente, equipos de aire frío-calor individuales por conductos, calefacción por radiadores. En los 3 subsuelos tiene bauleras para cada vivienda y estacionamiento.

© All Rights Reserved | SantiagoSposaro.com.ar | Buenos Aires 2023

Scroll al inicio